一、产品外观展示



一、产品总体功能概述
汽车驾驶模拟器主要是为学员提供驾驶操作训练、自主学习、教练、自主训练、按纲施训、训练考核等功能,为教员提供训练监控、训练人员注册管理、训练准备及资源管理、过程控制与干预、信息管理等功能。系统的应用场景主要包含基于三种汽车驾驶训练模拟器进行的场地驾驶典型驾驶模拟训练、道路课目驾驶模拟训练、复杂路段驾驶训练、驾驶模式训练、特殊天气条件驾驶模拟训练、上下运输工具驾驶模拟训练、特请处置训练、预防车辆交通事故训练以及实景道路驾驶训练等应用场景。
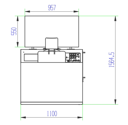
二、设备总体尺寸



一、三自由度运动平台技术参数(选配)
无运动平台。需要可以选配
二、驾驶舱体尺寸和主要零部件配置参数
1. 概述
(1)舱体采用单人座、半封闭式结构。舱体材质为金属材质,喷塑工艺,结实耐用,不易腐蚀。舱内布局与实装一致。
(2)外廓尺寸:
长:1702±10mm。宽:1100±10mm。高:1564±10mm。
(3)座椅与实车座椅一致。
(4)结构牢固,外形美观。
(5)表面处理工艺:采用喷塑工艺,军用迷彩色符合国军标GJB1379要求。
(6)安全设施:带扶手和安全梯子。

